Mieszkanie na start

Słupek z piekarnikiem
Miejsce do pracy zdalnej
Odseparowanie strefy kuchennej wysoką zabudową

Pierwsze mieszkanie - ekscytacja połączona z niepewnością

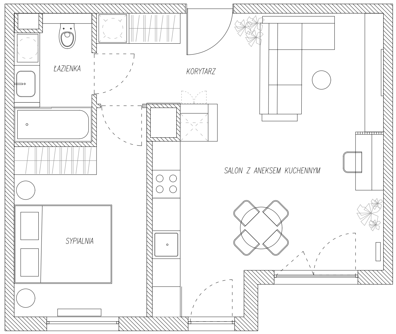
Pierwsze mieszkanie Oli i Kuby powstało z myślą o maksymalnym wykorzystaniu każdego metra kwadratowego. Para zgłosiła się do mnie z nadzieją, że uda się połączyć praktyczne rozwiązania z odważnym zastosowaniem koloru - a oliwkowy akcent miał przeplatać się przez wszystkie pomieszczenia.

Centrum dowodzenia stał się nieduży narożnik z zaakcentowaną ścianą TV, rozbudowaną o funkcjonalny kącik do pracy zdalnej, który sprawia, że nawet niewielka przestrzeń jest wygodna i praktyczna. Każdy detal został przemyślany tak, aby wnętrze było zarówno komfortowe, jak i spójne wizualnie. Małe przestrzenie wymagają dużej uwagi, kreatywności i umiejętności stosowania wizualnych trików - a to moja specjalność.

45

m2

2

pokoje

2

mieszkańców

Bezpłatna wycena

Chcesz dokonać wstępnej wyceny?
Napisz w treści wiadomości czego dokładnie potrzebujesz.
Niezobowiązującą wycenę otrzymasz w ciągu 24 godzin.

Chcesz osobiście porozmawiać o projekcie?
Zapraszam do kontaktu telefonicznego.

Projektuję wnętrza dla klientów z całej Polski
– niezależnie od lokalizacji.

 

STUDIO KAKTUS

OBSERWUJ STUDIO KAKTUS