Mieszkanie dla pary

Dużo miejsca do przechowywania
Wanna z parawanem
Fragment ściany i blat na szybki posiłek

Dobre wnętrze rodzi się tam, gdzie słuchamy potrzeb jego mieszkańców

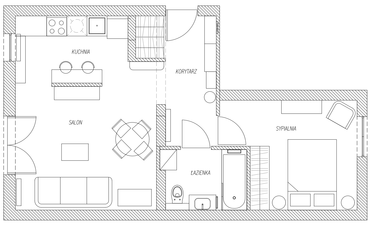
Projekt mieszkania dla Państwa Iwony i Marka powstał z myślą o połączeniu lekko retro klimatu z funkcjonalnością i indywidualnym charakterem. Od pierwszego spotkania złapaliśmy wspólny flow, co zapowiadało ciekawy projekt pełen dobrej energii i pomysłów.

Część ścian została przesunięta lub otwarta, wprowadzono mocne akcenty kolorystyczne, a wybrane meble właścicielki zachowały sentymentalny charakter. Powstała przestrzeń, w której ciekawie dobrane dodatki, wygodna sofa i nieoczywiste połączenia materiałów tworzą wnętrze wyjątkowe i pełne życia.

47

m2

2

pokoje

2

mieszkańców

Bezpłatna wycena

Chcesz dokonać wstępnej wyceny?
Napisz w treści wiadomości czego dokładnie potrzebujesz.
Niezobowiązującą wycenę otrzymasz w ciągu 24 godzin.

Chcesz osobiście porozmawiać o projekcie?
Zapraszam do kontaktu telefonicznego.

Projektuję wnętrza dla klientów z całej Polski
– niezależnie od lokalizacji.

 

STUDIO KAKTUS

OBSERWUJ STUDIO KAKTUS